At the December 8, 2025 Regular Meeting of Council, the Aspendale Area Structure Plan (Bylaw 2025-12) was given third reading and adopted by Council.
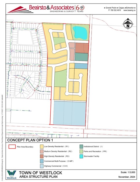
The ASP forms the high-level statutory guidance for the future development of the plan area and establishes:
- the general land use pattern,
- expected density and population projections, and
- major transportation and servicing concepts
All detailed site-level decisions, including construction, design, and building forms will be further shaped throughout the rest of the planning process, including rezoning, subdivision, development agreements, and permitting, each of which includes technical review and public notification where required.
The Aspendale ASP ensures the Town maintains a long-term supply of developable land and provides the certainty that builders, developers, and employers look for when making investment decisions.


